Podnośnik dwukolumnowy elektro-hydrauliczny ROTARY - SPO40E-5-EH4, przeznaczony do obsługi pojazdów osobowych oraz pick-upów i SUV o masie do 4500 kg.
Elektro-hydrauliczny podnośnik 2-kolumnowy bez podstawy (z wolnym przejazdem), z asymetrycznymi rmionami i symetrycznymi kolumnami, które umożliwiają łatwy i swobodny dostęp do punktów podparcia pojazdu.
Możliwość zakupu w formie leasingu dla firm
Cechy:
- Elektrohydrauliczne podnośniki dwukolumnowe serii SPO zachwycają wyjątkową powierzchnią podnoszenia. System sterowania jest dostępny w wersji ręcznej i elektrycznej, a także z różnymi wysokościami kolumn.
- Uniwersalna platforma podnosząca SPO40-5 o symetrycznej konstrukcji oferuje elastyczne możliwości podnoszenia od SMART do transporterów o długim rozstawie osi (np. Crafter, Sprinter). Konstrukcja ramienia podporowego umożliwia zarówno symetryczne, jak i asymetryczne podnoszenie pojazdów – bez konieczności zmiany ich położenia.
- Seria SPO – najlepiej sprzedająca się winda na świecie
- Maksymalne bezpieczeństwo dzięki koncepcji Rotary 3PSS
- Zakres odbioru od SMART do Transportera (SPO40)
- Koncepcja 3PSS (trójfazowy system bezpieczeństwa) obejmuje:
- Mechaniczne zatrzaski bezpieczeństwa zintegrowane z obu stron z automatycznym uruchamianiem
- Bezobciążeniowe rolki synchronizujące zabezpieczają ładunek podczas podnoszenia i opuszczania
- Układ hydrauliczny zabezpieczony zaworem zwrotnym, w tym bezobsługowym cylindrem wysokociśnieniowym w obu słupkach
- Maksymalna szerokość przejazdu przy minimalnych wymiarach zewnętrznych i konstrukcja bez ramy nośnej zapewniają bezproblemowy dostęp do platformy podnośnikowej.
- Podwójny profil S słupków podnoszących zapewnia maksymalną stabilność przy minimalnym zapotrzebowaniu na miejsce. Powierzchnia styku wózków podnoszących prowadzonych w słupkach podnoszących również została znacznie zwiększona.
- Obrotowe płyty są wtykowe i można je rozbudowywać lub wymieniać za pomocą elementów przyłączeniowych w stabilny i ekonomiczny sposób.
- Aby zwiększyć ergonomię i ekonomiczność, drugi panel sterowania jest standardem w modelu SPO40. Jeden panel sterowania jest wyposażony w przyłącze 220 V (zabezpieczone 16-amperowym bezpiecznikiem do elektrycznych narzędzi ręcznych), a drugi w przyłącze sprężonego powietrza.
- Górny wyłącznik bezpieczeństwa skutecznie chroni pojazdy o większej wysokości całkowitej przed uszkodzeniami podczas podnoszenia.
- Elektrohydrauliczna konstrukcja z tylko jednym zespołem zapewnia energooszczędną pracę i szybki czas podnoszenia i opuszczania.
- Urządzenie jest mocowane kołnierzowo do górnej części kolumny podnoszącej, co chroni je przed wpływami zewnętrznymi i zapewnia większą swobodę ruchu.
- Hydrauliczny układ obrotowy zapewnia maksymalną łatwość obsługi przy minimalnych kosztach eksploatacji
- Ramiona podporowe blokują się automatycznie podczas podnoszenia. Po całkowitym opuszczeniu platformy blokada ta zwalnia się automatycznie. Wyjątkowo drobna siatka i funkcja ręcznego odblokowania dodatkowo zwiększają wygodę obsługi.
-
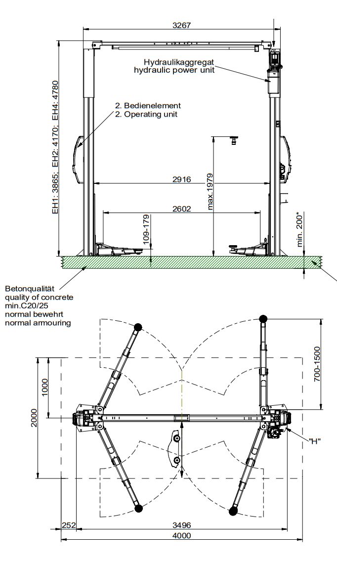
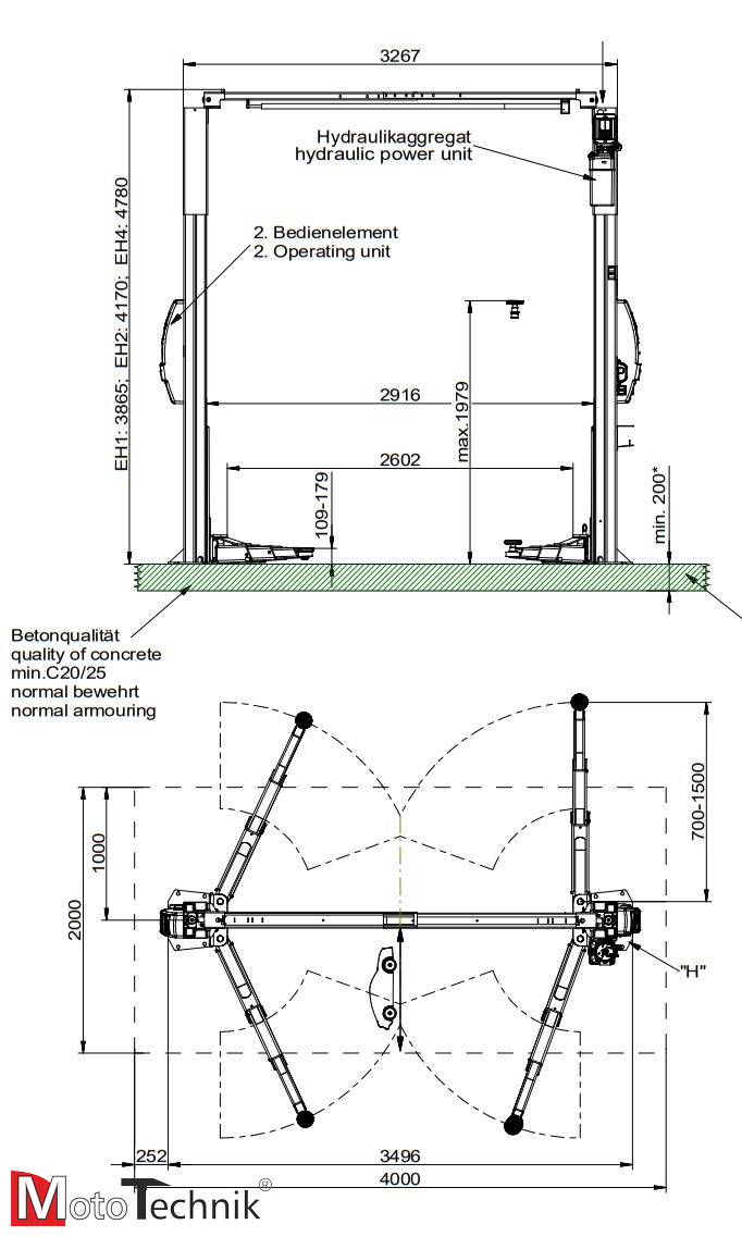
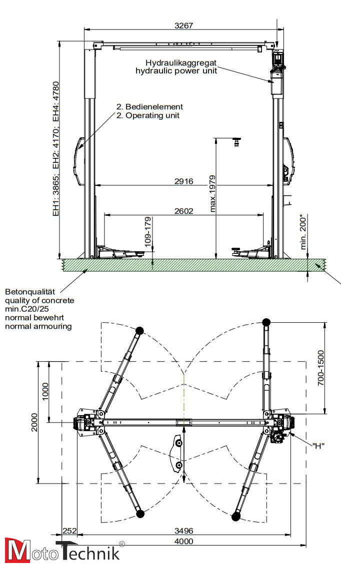
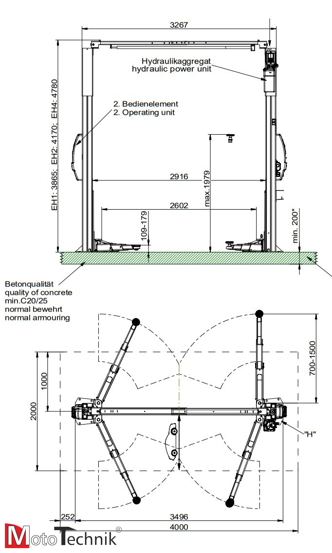
Dane techniczne:
- Udźwig 4500 kg
- Wysokość podnoszenia 1979 mm
- Wysokość całkowita 4780 mm
- Wysokośc do górnej krańcówki ochronnej: 4675 mm
- Szerokość całkowita 3496 mm
- Maksymalna szerokość pojazdu 2336 mm
- Długość ramion przednich 700–1500 mm
- Długość ramion tylnych 700–1500mm
- Wysokość punktów podparcia (min-max) 109–179 mm
- Szerokość pomiędzy kolumnami 2916 mm
- Zasilanie 400 V, 3 ph 50 Hz
- Moc silnika 4 kW
- Czas podnoszenia 30 s
- Waga 850 kg

Fundament:
- Pod podnośnik wymagany jest jednolity fundament o min. grubości 200 mm wykonany w klasie C20/25 (B 25).
- Grubość warstwy nawierzchniowej w przypadku posadzki wykonanej np. z jastrychu, płytek, powłoki z tworzywa sztucznego itp., nie powinna przekraczać 50 mm. Głębokość zagłębienia kotwy w warstwie betonowej fundamentu powinna wynosić min. 150 mm.
- Wymiary płyty fundamentowej: 4000 mm x 2000 mm.
